Upper East Side, Manhattan NY 10128
|
5 Rooms
|
2 Beds
|
2 Baths
|
1300 SQ. FT.
Description
Featuring a wide wrap terrace with large and rarely found south, east, and west facing areas, this distinctive 2BR, 2BA Carnegie Hill prewar penthouse apartment with wood-burning fireplace exemplifies home. The sense of indoor and outdoor space is seamless. Sunlight fills every room. The tri-sided terrace... See more
Featuring a wide wrap terrace with large and rarely found south, east, and west facing areas, this distinctive 2BR, 2BA Carnegie Hill prewar penthouse apartment with wood-burning fireplace exemplifies home. The sense of indoor and outdoor space is seamless. Sunlight fills every room. The tri-sided terrace not only includes a south facing direction coveted for home kitchen gardens, but each side can also be adapted as an additional "outdoor room" to accommodate personalized functions and interesting views in all seasons from interior rooms. George Pelham, the building architect, specified terrace details which called for crenellated brick parapet walls, adding repeating design articulation that creates elegance and period interest. Three sets of double French doors with sidelights invite easy indoor and outdoor movement as well as establishing historical warmth.
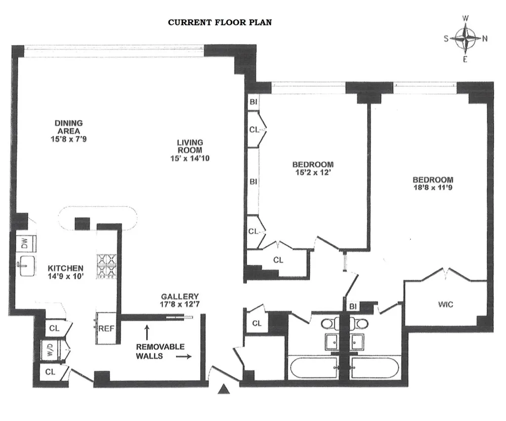
Both bedrooms have ensuite baths, one has a shower and a washer and dryer, and the other has a tub with shower. Beautiful custom woodworker-crafted furniture-like closets and built-in storage are examples of the fine sensibility for detail throughout the apartment. The renovated kitchen features a cozy breakfast counter, extensive cabinet space, and large inviting windows. Magnificent hardwood floors throughout. Condition throughout is excellent. Complete refurbishment of the roof and terrace was completed in 2025.
Designed by the well-known architect George Pelham and built in 1926, 51 East 90th Street is a well-run cooperative. It has full-time doormen, a live-in super, a basement laundry, bike room and private storage for rent. Pets and pied-a-terre ownership are permitted. Up to 60% financing is allowed. A monthly capital assessment of $2,270.33 runs through June 2027. There is a 2% flip tax.
Located in the heart of Manhattan's popular Carnegie Hill neighborhood, 51 East 90th Street is a block and a half from the beautiful Engineer's Gate entry to Central Park and the walking and running paths around the Reservoir. This is a very pleasant neighborhood, attractive and vibrant, filled with historic architecture, museums, shops and restaurants.
See less
Listing courtesy of Corcoran Group, Katherine Slattery - (917) 855-0222
Building / Unit Amenities
- Elevators
- Laundry
- Private Outdoor Space Over 60 Sqft
- Separate Formal Dining Room
- Wrap Around
- Fire Place - Other
Location
51 E 90TH Street #PHA, , 10128
Similar Listings
Condo
$3,995,000
1295 MADISON Avenue, Upper East Side
2 Beds | 3 Baths
| 1,715 sqft
Listing by JOHN FORBES
Co-op
$2,500,000
870 5TH Avenue, Upper East Side
2 Beds | 2 Baths
| 1,500 sqft
Listing by STEVEN COHEN
Condo
$3,445,000
255 E 77th Street, Upper East Side
2 Beds | 3 Baths
| 1,540 sqft
Listing by Alexa Lambert
Condo
$3,465,000
255 E 77th Street, Upper East Side
2 Beds | 3 Baths
| 1,540 sqft
Listing by Alexa Lambert
Condo
$4,950,000
923 Fifth Avenue, Upper East Side
2 Beds | 2 Baths
| 1,200 sqft
Listing by Gordon T. Roberts



