Clinton, Manhattan NY 10019
|
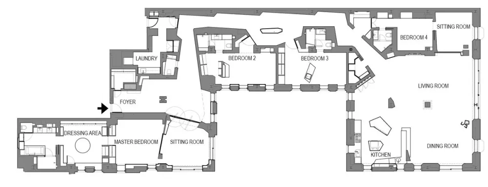
10 Rooms
|
4 Beds
|
4 Baths
|
5450 SQ. FT.
Description
Luxury modern design is waiting for you at 106 Central Park South. Residence 21AE offers a spacious 5,450 sf with unobstructed Central Park views and has been featured in numerous magazines.The incomparable interiors created by world-renowned design firm D’Aquino Monaco reflect an aesthetic of independent... See more
Luxury modern design is waiting for you at 106 Central Park South. Residence 21AE offers a spacious 5,450 sf with unobstructed Central Park views and has been featured in numerous magazines.
The incomparable interiors created by world-renowned design firm D’Aquino Monaco reflect an aesthetic of independent artistic expression. No design detail has been overlooked, from the glass clad columns to the faceted walls to the hand-laid mosaic floors in the master suite. The rooms present a calming atmosphere of pearl grays and white, with pops of bright color in the bathrooms and monochromatic Lichtenstein-inspired murals in the common areas. In addition to the master suite, there are 3 more bedrooms with ensuite bathrooms; the apartment has a total of 4 bedrooms, 3 full bathrooms and 2 half bathrooms.
The fully integrated kitchen has an excellent flow, allowing for the ability to entertain and cater to large groups. The kitchen incorporates ample storage and discreet appliances as well as a full-height custom wine cellar designed to show off your private collection. The world-famous fabrication and sculpture studio, Atta Inc., created both the one-of-a-kind custom pivoting resin doors that frame the master suite entry as well as every bathroom vanity. New York’s Lindsey Adelman Studio turned their creative eye towards created custom lighting installations throughout the apartment. The floors are polished urethane, which create a seamless, semi-reflective surface reminiscent of the best galleries. The top-of-the-line tilt and turn windows frame the spectacular Central Park view.
In addition to the incomparable stunning finishes, the interiors of the apartment have been upgraded as well. The systems were renovated with upgraded wall insulation; modern HVAC’s with built-in humidification; all new plumbing featuring integrated filtration; and large capacity washer dryers.
The white glove building features hotel-style amenities, bike storage, garage, valet, and live-in resident manager See less
The incomparable interiors created by world-renowned design firm D’Aquino Monaco reflect an aesthetic of independent artistic expression. No design detail has been overlooked, from the glass clad columns to the faceted walls to the hand-laid mosaic floors in the master suite. The rooms present a calming atmosphere of pearl grays and white, with pops of bright color in the bathrooms and monochromatic Lichtenstein-inspired murals in the common areas. In addition to the master suite, there are 3 more bedrooms with ensuite bathrooms; the apartment has a total of 4 bedrooms, 3 full bathrooms and 2 half bathrooms.
The fully integrated kitchen has an excellent flow, allowing for the ability to entertain and cater to large groups. The kitchen incorporates ample storage and discreet appliances as well as a full-height custom wine cellar designed to show off your private collection. The world-famous fabrication and sculpture studio, Atta Inc., created both the one-of-a-kind custom pivoting resin doors that frame the master suite entry as well as every bathroom vanity. New York’s Lindsey Adelman Studio turned their creative eye towards created custom lighting installations throughout the apartment. The floors are polished urethane, which create a seamless, semi-reflective surface reminiscent of the best galleries. The top-of-the-line tilt and turn windows frame the spectacular Central Park view.
In addition to the incomparable stunning finishes, the interiors of the apartment have been upgraded as well. The systems were renovated with upgraded wall insulation; modern HVAC’s with built-in humidification; all new plumbing featuring integrated filtration; and large capacity washer dryers.
The white glove building features hotel-style amenities, bike storage, garage, valet, and live-in resident manager See less
Listing courtesy of Blu Realty Group, Edward Diaz - (212) 580-8879
Building / Unit Amenities
- Storage
- Entrance Foyer
- Kitchen Window



