Hamilton Heights, Manhattan NY 10031
|
10 Rooms
|
7 Beds
|
7 Baths
|
2688 SQ. FT.
Description
5%+ Cap Rate! User/Purchaser or Investor Friendly Opportunity Welcome to the Sugar Hill Historic District of Hamilton Heights, a neighborhood filled with old growth trees and turn of the century townhouses sitting high above the valley of Central Harlem. Hamilton Heights is named after Alexander Hamilton,... See more
5%+ Cap Rate! User/Purchaser or Investor Friendly Opportunity
Welcome to the Sugar Hill Historic District of Hamilton Heights, a neighborhood filled with old growth trees and turn of the century townhouses sitting high above the valley of Central Harlem. Hamilton Heights is named after Alexander Hamilton, who built his home here. This is a neighborhood rich with history from jazz legends, the beautiful City College Campus and has 5 subway lines and 5 parks within a 10-minute walk of this 5-family townhouse.
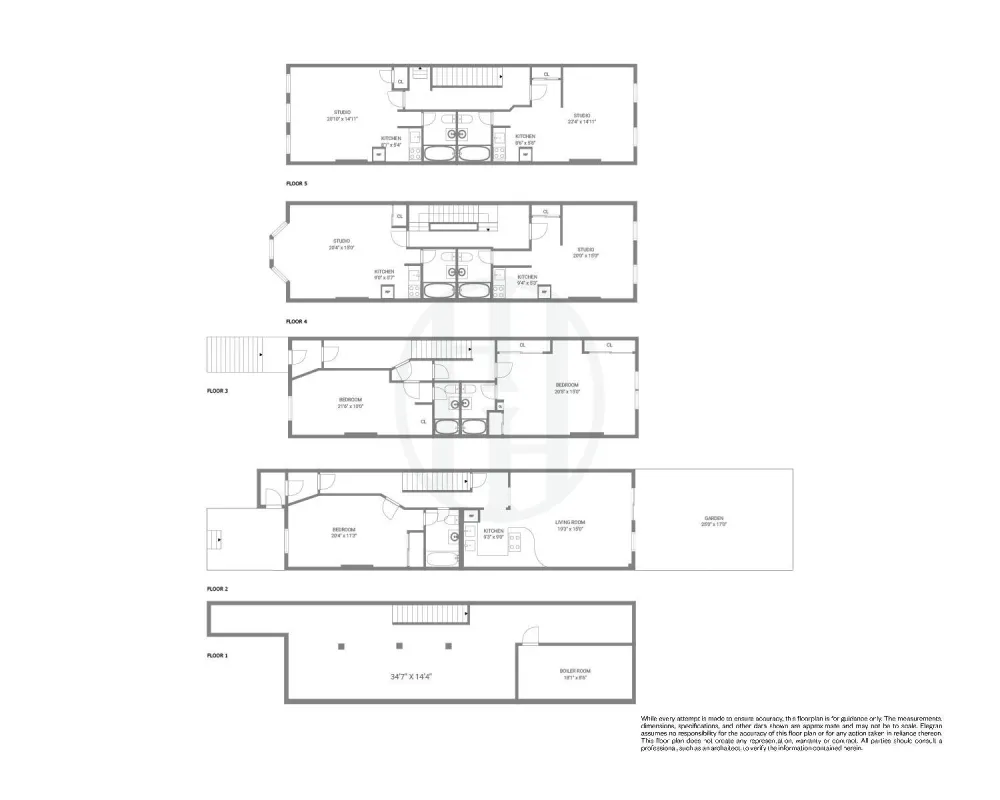
The house, built in 1926 and renovated in 2016, is fully leased with market rate rents. On the garden level and parlor floor is a 3-bedroom, 3 bath duplex with high ceilings and exclusive access to the approximately 425 sq ft. garden and W/D. This can be used as an owner’s duplex- presently rented month to month. On the 3rd and 4th Floor are 2 Studios per floor. Setup sheet available on request.
The home has East and West Facing exposures that provide great natural light throughout the day and is located on a townhouse heavy section of the neighborhood- so even the garden level space gets great natural light not blocked by tall buildings. Low property taxes of just $647/month. Convent Avenue consists of mostly residential properties and the City College campus which limits vehicle traffic- so residents are treated to a much calmer, quieter and more desirable living experience.
All new building systems (boiler, roof, meters, etc) were installed when the building was renovated in 2016 and well maintained since. The house is built 16’ x 54’ on a lot that is 16’x85’. Gross Square Footage is 3,456 including the garden level.
Sugar Hill is Featured on the Harlem Stories Podcast!
See less
Listing courtesy of Elegran LLC, Adam Feinberg - (212) 729-5712 x
Building Amenities
Unit Amenities
- Private Outdoor Space Under 60 Sqft
Location
427 Convent Avenue, , 10031
Similar Listings
Other
$2,299,999
475 W 144TH Street, Hamilton Heights
7 Beds | 5 Baths
| 4,608 sqft
Listing by Ravi Kantha
Other
$3,600,000
453 W 140TH Street, Hamilton Heights
7 Beds | 5 Baths
| 4,683 sqft
Listing by Brian Phillips
Other
$2,495,000
614 W 146th Street, Hamilton Heights
7 Beds | 5 Baths
| 4,818 sqft
Listing by Danielle Nazinitsky



