Hunters Point, Queens NY 11104
|
4 Rooms
|
1 Bed
|
1 Bath
|
665 SQ. FT.
Description
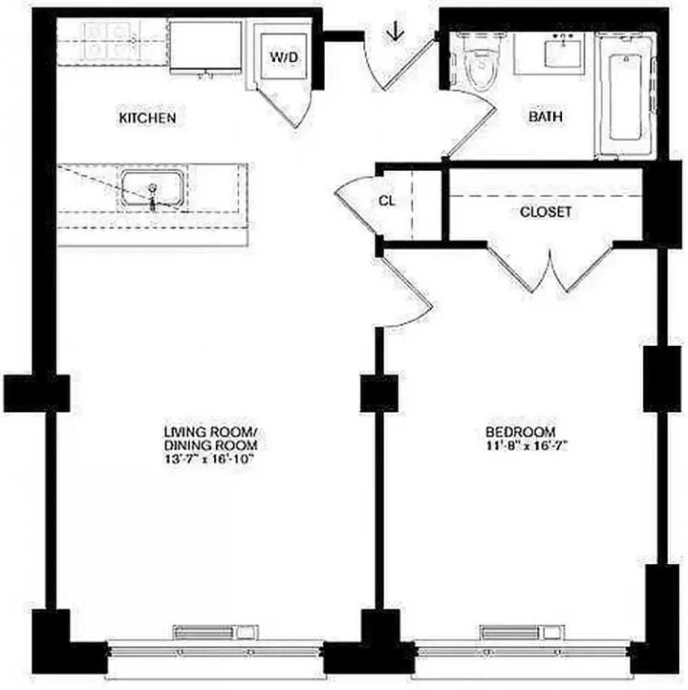
Welcome to this bright and airy one-bedroom condominium at The Phoenix Condomium, ideally located in the heart of Sunnyside. Spanning approximately 665 square feet, this residence enjoys south- and east-facing exposures that fill the home with natural light throughout the day. The living and dining... See more
Welcome to this bright and airy one-bedroom condominium at The Phoenix Condomium, ideally located in the heart of Sunnyside. Spanning approximately 665 square feet, this residence enjoys south- and east-facing exposures that fill the home with natural light throughout the day. The living and dining areas flow seamlessly into a modern galley kitchen with stainless-steel appliances, honey-maple cabinetry, and granite countertops. The king-size bedroom offers generous closet space, while the bathroom includes both a full tub and shower.
Built in 2006, The Phoenix Condominium is a 31-unit, six-story elevator building offering thoughtful amenities including video-intercom entry, key-fob access, laundry facilities, indoor parking, private storage, bike storage, and a landscaped outdoor recreation area - plus an attentive live-in superintendent for residents' convenience. Professionally managed and well maintained, the building provides an easy, low-maintenance lifestyle.
Just across from the 40th Street 7 Train and Q60 bus, the location offers a fast commute to Midtown Manhattan. Enjoy Sunnyside favorites such as SoleLuna, Aubergine Café, and Bolivian Llama Party, or unwind at Sunnyside Gardens Park with its seasonal fairs and outdoor events. With tree-lined streets, local markets, and a strong community spirit, Sunnyside delivers the perfect balance of neighborhood warmth and city access.
See less
Built in 2006, The Phoenix Condominium is a 31-unit, six-story elevator building offering thoughtful amenities including video-intercom entry, key-fob access, laundry facilities, indoor parking, private storage, bike storage, and a landscaped outdoor recreation area - plus an attentive live-in superintendent for residents' convenience. Professionally managed and well maintained, the building provides an easy, low-maintenance lifestyle.
Just across from the 40th Street 7 Train and Q60 bus, the location offers a fast commute to Midtown Manhattan. Enjoy Sunnyside favorites such as SoleLuna, Aubergine Café, and Bolivian Llama Party, or unwind at Sunnyside Gardens Park with its seasonal fairs and outdoor events. With tree-lined streets, local markets, and a strong community spirit, Sunnyside delivers the perfect balance of neighborhood warmth and city access.
See less
Listing courtesy of Corcoran Group, Lauren Bennett - (718) 612-9922
Building Amenities
Unit Amenities
- Private Outdoor Space Under 60 Sqft
Location
41-02 QUEENS Boulevard #4E, , 11104
Similar Listings
Condop
$510,000
4-74 48TH Avenue, Hunters Point
1 Bed | 1 Bath
| 700 sqft
Listing by Bogna Nasilowska
Condo
$480,000
42-05 48TH Avenue, Hunters Point
1 Bed | 1 Bath
| 900 sqft
Listing by Viktoryia Shymchonak



