Description
Eklund Gomes Team presents soaring luxury with iconic views, perched on the 29th floor of the coveted Sky House, this stunning two bedroom, two and a half bathroom corner residence offers panoramic, 360-degree views of New York's most iconic landmarks-including the Empire State Building, the Met Life Clock Tower, and both the East and Hudson Rivers. The unit boasts floor-to-ceiling windows and 11 foot ceilings flood the space with natural light, creating an airy, dramatic backdrop for luxury living.
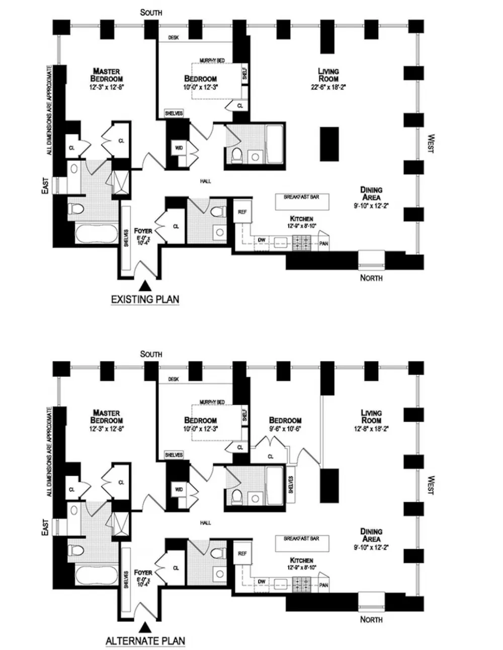
The highly desirable A-line layout is perfect for entertaining, with a gracious entry gallery that opens to a sprawling living and dining area framed by nine oversized windows showcasing breathtaking views throughout the day and night. The open chef's kitchen features a granite center island with bar seating, high-gloss countertops, glass tile backsplash, premium appliances, a garbage disposal, and instant hot water dispenser-both beautiful and functional.
The sun-drenched primary suite enjoys open southern and eastern exposures, en-suite bath, standing shower, soaking tub, and stylish finishes. The spacious secondary bedroom offers southern light
Additional highlights include a five-zone central A/C system, in-unit washer/dryer, and automatic blinds.
Built in 2005, Sky House is a full-service condominium offering a 24-hour doorman, concierge, fitness center, playroom, private storage, cold storage, bike room, and a live-in superintendent.
Located between Fifth and Madison Avenues in the heart of NoMad, you're moments from Madison Square Park, Eataly, the Ace and NoMad Hotels, and the best of Manhattan dining, shopping, and culture!
Note there is a special assessment through October of 2026 of $829.86/mo and reserve assessment of $495/mo
Listing courtesy of Douglas Elliman Real Estate, Rachel Meyers - (347) 721-7154
See lessBuilding Amenities
Unit Amenities
- Concierge
- Laundry
- Private Outdoor Space Over 60 Sqft


