Description
393 West Broadway, Unit 4WB
Welcome to this exceptional SoHo corner loft, a true rarity that combines volume, light, and character in one of downtown's most coveted addresses.
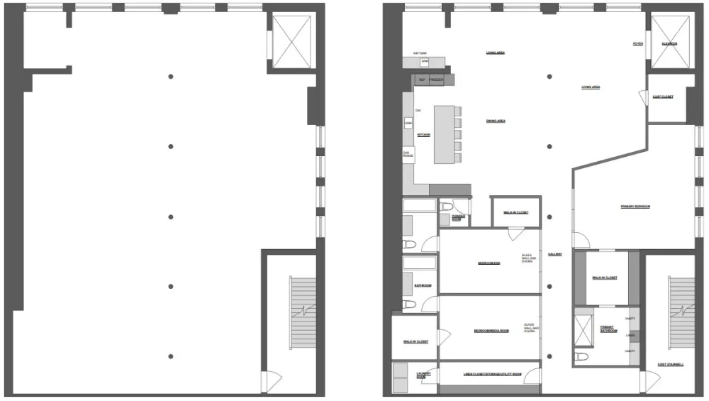
Bathed in natural light from nine expansive windows facing west and north, the space exudes warmth and authenticity, highlighting the loft's original architectural charm. The layout offers a true blank canvas, with the potential to create up to eight distinct rooms, a space that can be tailored to your vision, whether you imagine an expansive open loft, a collection of private retreats, or a harmonious blend of living and relaxing areas.
Private elevator access opens directly into the residence, leading to soaring ceilings, a full laundry room, and refined industrial details that define SoHo's timeless appeal. The building is pet-friendly, welcoming your four-legged companions into this creative haven.
Perfectly situated in the heart of SoHo, 393 West Broadway places you just moments from world-class boutiques, dining destinations, and art galleries, with effortless access to multiple subway lines.
This is more than a home; it's a canvas for self-expression, offering the opportunity to design a truly bespoke residence in one of New York's most iconic neighborhoods.
Listing courtesy of Douglas Elliman Real Estate, Melissa Hernandez - (917) 968-1049
See lessBuilding Amenities
Unit Amenities
- Laundry



