Upper West Side, Manhattan NY 10019
|
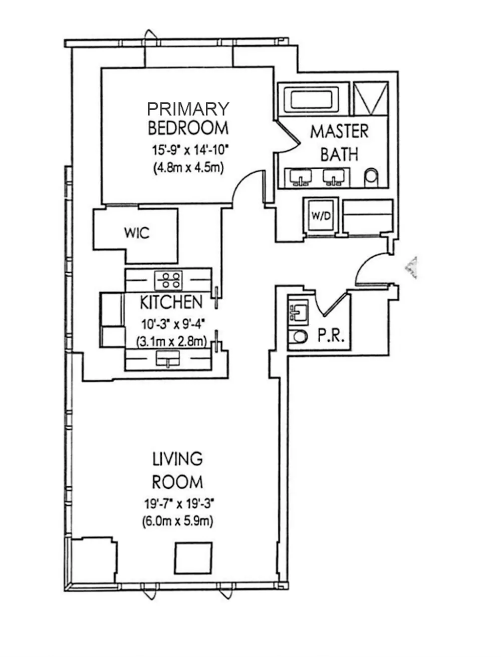
3 Rooms
|
1 Bed
|
2 Baths
|
1250 SQ. FT.
View the listing Virtually
Description
Large corner one-bedroom residence in one of the most architecturally significant addition to the New York skyline designed by world reknowned Pritzker Prize-winning architect Jean Nouvel. Best pied a terre in Midtown Manhattan, why stay in a hotel when you can have your own hotel equivalent services.... See more
Large corner one-bedroom residence in one of the most architecturally significant addition to the New York skyline designed by world reknowned Pritzker Prize-winning architect Jean Nouvel. Best pied a terre in Midtown Manhattan, why stay in a hotel when you can have your own hotel equivalent services. Beautiful 9" tall walnut doors throughout with floor to ceiling windows with views to the west and south. The kitchen features polished marble countertops and marble backlit backsplash with glass cabinetry by Molteni and high end appliances. Great layout with the bedroom tucked away from living room and very quiet space with en suite spa like bathrooms with soaking tub and shower stall. Services & Amenities - Perpetual Benefactor W53 MoMA membership. Private state-of-the-art theater, Central Park view double-height lounge. Private park view formal dining room. Wellness Center managed by The Wright Fit. 65-foot lap pool. Regulation squash court Golf simulator. Double-height wine tasting room. Children's playroom. Bicycle storage. Chauffeur lounge off service entrance. 24-hour concierge 24-hour porter service 24-hour doormen at both 53rd Street and 54th Street entrances. Live-in resident manager. Private service and delivery entrance with dedicated staff and two service elevators. Housekeeping/maid service. Dry cleaning and laundry service. Floral delivery and care. Pet concierge. Curbside valet parking. In-residence dining and catering from in-building restaurant. Call today to view this exceptional property.
Listing courtesy of Brown Harris Stevens Residential Sales LLC, Pillay Demirdjian - (212) 381-2262
See lessBuilding Amenities
Unit Amenities
- Concierge
- Elevators
- Golf Simulator Room
- Indoor Pool
- Sauna
- Screening Room
- Steam Room
- Laundry
- Private Outdoor Space Under 60 Sqft
Location
53 W 53RD Street #24F, , 10019
Similar Listings
Apartment
$1,215,000
220 RIVERSIDE Boulevard, Upper West Side
1 Bed | 1 Bath
| 932 sqft
Listing by Yu Sook Kim
Apartment
$1,975,000
611 W 56TH Street, Upper West Side
1 Bed | 2 Baths
| 869 sqft
Listing by Sales 10019
Apartment
$895,000
255 W 85TH Street, Upper West Side
1 Bed | 2 Baths
| 732 sqft
Listing by Jed Lewin
Apartment
$3,250,000
53 W 53RD Street, Upper West Side
1 Bed | 2 Baths
| 1,474 sqft
Listing by Nile Lundgren


