Description
Dreaming of a new home filled with peaceful and artistic vibes in quintessential Greenwich Village. Unique opportunity, rarely available corner home in the true heart of the West Village. First time on the market in over 30 years.
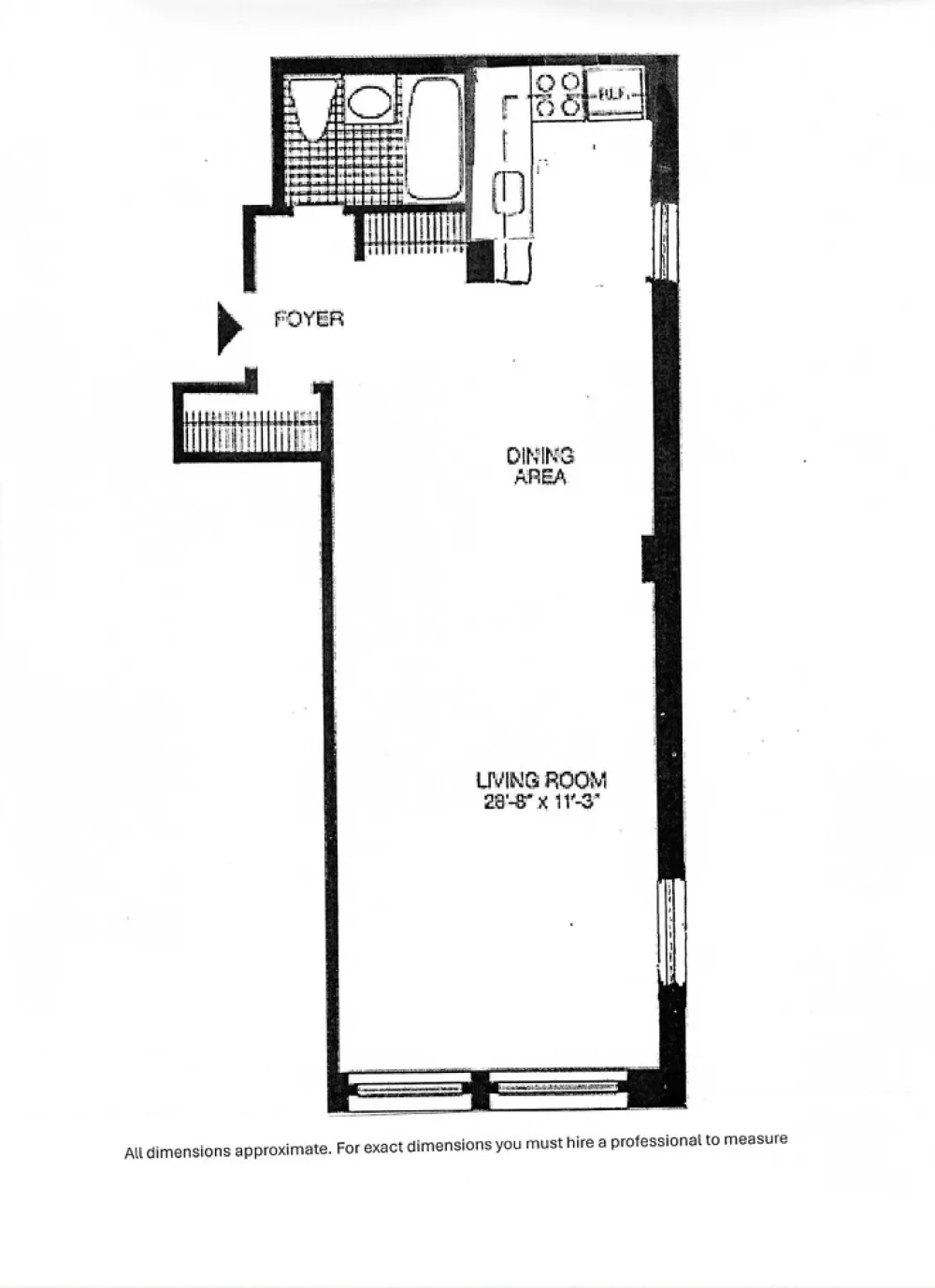
The vibrant heart of the West Village, 9 Barrow Street, offers an exquisite retreat in one of New York City's most sought-after neighborhoods. This beautifully maintained co-op captures the charm and elegance of its era combined with modern conveniences invites you to experience cozy city living at its finest. Sunlight abounds in this gracious and spacious loft style studio, that is sized more like a 1 bedroom, creating living, dining, and sleeping with room to spare. Step inside to find high ceilings that amplify the abundance of natural light flooding through oversized, double-pane windows, offering views of downtown, the cityscape, and picturesque rooftops with sky. The original barrel vaulted ceilings, alongside rich hardwood floors, adds a timeless allure to the living space. An open, windowed kitchen, complete with modern appliances like a dishwasher, caters to both intimate dinners and casual entertaining. Ample storage space, including generous closet areas, is seamlessly unified throughout the unit, while central air ensures your comfort during warm summer months. Those with furry friends will appreciate the pet-friendly policy, making it a welcoming home for all. The The property features the convenience of a Resident Manager, two elevators and a part-time doorman. Enjoy the c onvenience of laundry facilities each floor, Package Concierge system, Building Link notification, Butterfly access via app. Pied-a-terre acceptable
You'll cherish living in a historic building with classic character, all while enjoying contemporary amenities at your fingertips. Beyond your doorstep, the eclectic and spirited West Village awaits, offering an array of world-class dining, boutique shopping, and iconic local attractions. From the picturesque streets of Greenwich Village to the cultural mecca of Washington Square Park, every adventure is within reach. Easy access to transportation options ensures seamless commutes and exploration of the city's wider areas. Amazing location, two blocks to Washington Square Park, Hudson Riverwalk, NYU, Jazz clubs and Stonewall Monument. One block to the 1 subway line at Sheridan Square, a short walk to the West 4th street station A,B,C,D,E,F,M subways
Don't miss this extraordinary opportunity to claim your unique piece of NYC living. Schedule a showing today and envision your life in this exceptional West Village home!
Listing courtesy of JUSTIS PROPERTIES LLC, Daisy Dowleh - (917) 517-5368
See lessBuilding Amenities
Unit Amenities
- Laundry



