Description
NEW PRICE!
EXCELLENT CONDITION DOUBLE HEIGHT 16" WALL-OF-WINDOWS
Bright, recently renovated duplex loft with 16" Ceiling in Greenwich Village's much sought after historic Cast Iron Building. The 16" south-facing windows fill the spacious interior with sunlight emphasizing its height.
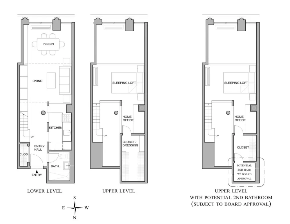
This open plan features Dining and Living areas and a Kitchen with top-end appliances including a gas range from Bertazzoni's Professional Series. A closet near the entrance, and shelving units with credenza along one wall provide generous storage.
The modern bathroom features a frameless shower screen and striking fixtures in a room fully tiled with warm colored porcelain. Cabinetry and the unique staircase was custom-made by Windsor Antique Restoration, noted for craftsmanship in Manhattan's most exclusive homes.
The mezzanine has a spacious, windowed, sleeping loft, home office and a large walk-in closet. Subject to Co-op Board approval, there is potential to add a second bathroom in the rear of this closet.
The Cast Iron Building has 24-hour Doormen, Live-in Super, Modern Elevator, a newly-restored historic Facade with renovated Lobby and Hallways.
Residents enjoy modern amenities including an exquisitely landscaped common Roof Deck with panoramic views of the NYC's iconic buildings, a brand new fully equipped Fitness Center and Laundry Facilities in the Basement.
1.5% flip tax and up to 80% Financing allowed. The Building allows Co-purchasers, Guarantors, Pied-a-terres, Sublets, and cats and dogs.
Don't miss this rare opportunity to own a charming home on the floor with the building's tallest ceilings.
See less
Listing courtesy of Sloane Square LLC, Jacqueline Rosen - (917) 374-2362
Building Amenities
Unit Amenities
- Laundry
- Roof Deck


