Prospect Heights, Brooklyn NY 11238
|
9 Rooms
|
4 Beds
|
4 Baths
|
3788 SQ. FT.
Description
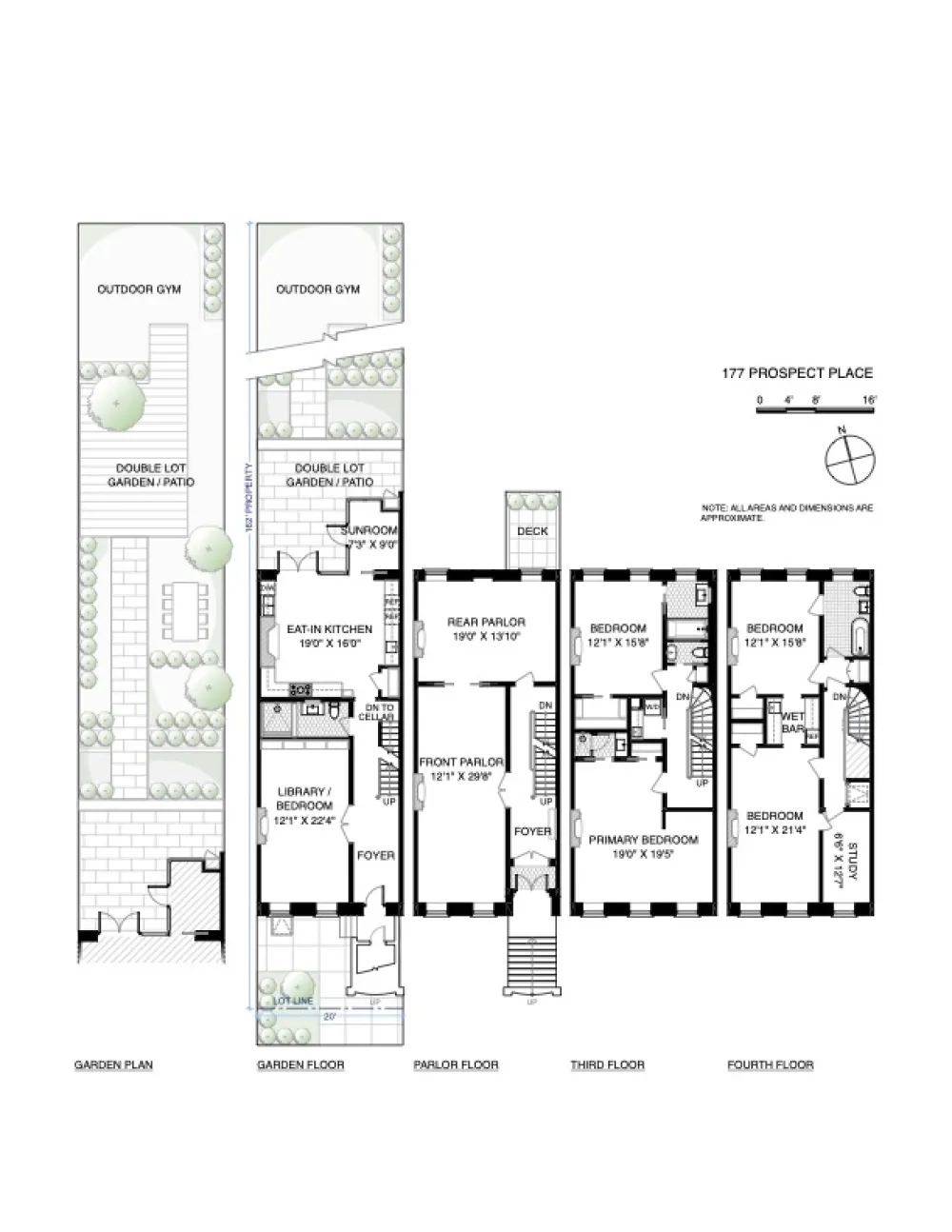
At the epicenter of the Prospect Heights historic district sits 177 Prospect Place, a singular and poetic Italianate brownstone on a rare 162’ lot, with a Noguchi-inspired garden. Exquisitely restored and reimagined under the stewardship of its fourth owner since the home was built in 1871, this distinctive... See more
At the epicenter of the Prospect Heights historic district sits 177 Prospect Place, a singular and poetic Italianate brownstone on a rare 162’ lot, with a Noguchi-inspired garden.
Exquisitely restored and reimagined under the stewardship of its fourth owner since the home was built in 1871, this distinctive single-family is both a paean to bygone Brooklyn and an elegant ode to the integration of past and present. Previously converted to a three-family – its historic details buried under a characteristically linoleum-heavy 1960s design – the home has been brought back to life over twenty-six years of inspiration and investment.
Original parquet floors, decorative marble fireplaces and mantelpieces, crown moldings and medallions, etched glass, walnut banisters, and pier mirrors now shine with exquisite care. The restored Italianate foundations are complemented by historically accurate customizations: 18 custom-built windows with mahogany frames, including double-height casements on the parlor level; foyer stone cut from the last slab of marble remaining from the lobby of the Empire State Building. Rewired chandeliers hang from over 12’ ceilings on the parlor floor, giving the home a quality of suspended light and space rare even amongst its fellow 20’ townhouses.
Essential modernizations have been made in harmony with the home’s historic palette; rich natural materials shine through in ageless simplicity. Walnut pocket doors across the bedroom floor maintain a sense of openness while enclosing serene spaces. The bathrooms and laundry room (with vented Miele washer and dryer) are finished in Mosa tile and walnut, with Corian surround, Duravit sinks, and faucets and fixtures from Barber Wilsons UK. Three-zone central air integrates seamlessly behind cast-iron grilles.
The gut-renovated kitchen, a commercial-grade space designed for indestructibility — with custom cabinetry and refrigeration by Marlo Manufacturing, and a vented Jade “Supreme” Heavy Duty Range — is also designed for warmth, with a wood-burning Rumford fireplace, fashioned from bluestone quarried in Alcove, NY (the same stone chosen for a deep Japanese soaking tub in the adjoining bath). A full glass curtain wall creates an immersion in the changing light of the garden, bringing the outdoors in, daylong and year-round.
The Foras Studio-designed sculptural garden itself stretches over 100’, providing distinct areas for dining and dreaming, exercising, and entertaining. A marvel of regeneration, no usable materials left the site in the garden’s reimagination: rough stone from a ‘60s gas fireplace found new life as a striking bench that anchors the 162’ lot; an old-growth Eastern White Pine, which survived a lightning strike in the 1970s, now shelters three maples, the younger planted from seedlings found on the property. Components salvaged from an antique printing press stored in the cellar for decades were repurposed into accents and equipment for artful fitness and play. The garden is equipped with a fully automatic inground irrigation system installed by LifeSource Irrigation. Discreet bronze light fixtures throughout the garden complement the peacefulness of the outdoor space all evening.
The home’s internals have been attended to with the same meticulous care as its external aesthetics, starting with a complete reconstruction of the historic cast iron stoop rail and restoration of the brownstone facade. Three-zone central air was completed in 2009, at the same time that the home was converted to a single-family C of O. The roof was replaced in 2014, and in 2020, the maximum allowable number of solar panels for the Landmark District were installed by Brooklyn SolarWorks. At that time, meters were consolidated, and new code-compliant ventilation conduit was installed from the boiler room. The boiler itself was replaced in 2021, and the main sewer piping connecting to the external city sewer line was fully replaced in 2016. The home also benefits from a co
Listing courtesy of , Michaela Morton - (337) 577-1379
See lessBuilding Amenities
Unit Amenities
- ,
Location
177 Prospect Place, , 11238
Similar Listings
Townhouse
$2,835,000
273 PARK Place, Prospect Heights
4 Beds | 4 Baths
| 2,880 sqft
Listing by Jason Abrishami
Townhouse
$3,250,000
637 Carlton Avenue, Prospect Heights
4 Beds | 3 Baths
| 2,940 sqft
Listing by Violette Tonuzi
Apartment
$3,800,000
280 St Marks Avenue, Prospect Heights
4 Beds | 3 Baths
| 1,857 sqft
Listing by Jessica Perrizo
Other
$3,200,000
281 PARK Place, Prospect Heights
4 Beds | 4 Baths
| 2,373 sqft
Listing by Peter Grazioli
Apartment
$5,000,000
1 GRAND ARMY Plaza, Prospect Heights
4 Beds | 3 Baths
| 3,199 sqft
Listing by Karen Heyman
Other
$4,499,000
301 PARK Place, Prospect Heights
4 Beds | 4 Baths
| 3,500 sqft
Listing by Norhana Ariffin
Condo
$3,275,000
268 St Marks Avenue, Prospect Heights
4 Beds | 4 Baths
| 2,140 sqft
Listing by Paul Dawson
Apartment
$1,995,000
680 WASHINGTON Avenue, Prospect Heights
4 Beds | 4 Baths
| 3,116 sqft
Listing by Craig Yoskowitz



