Description
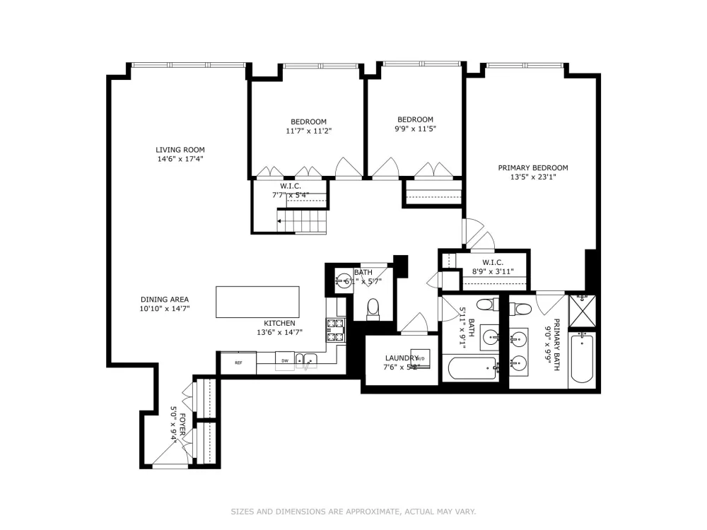
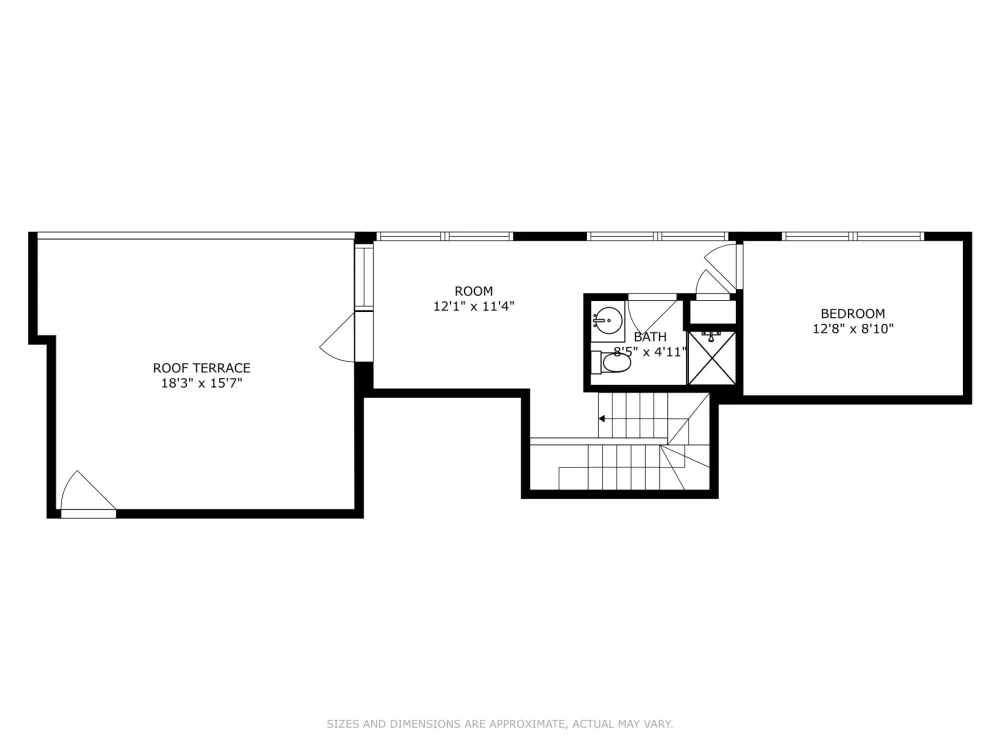
Livе іn high stуlе іn thiѕ luxurіous 4 bedroom, 3.5 bathroom pеnthouѕe duplex boasting 2,585+/- square feet of designer loft-like living space, spectacular views from every room, and a large private outdoor terrace! Set on the 11th and top story of the boutique Lion's Head condominium in prime Chelsea, Penthouse F is a rare, spacious gem accented by rich oak wood floors, soaring 13 ft ceilings, and refined finishes throughout. Oversized sound-proofed European-style windows lining both levels create a quiet ambience, invite in abundant natural light, and frame amazing city skyline vistas capturing the Empire State and other iconic buildings.A gracious foyer greets your arrival to the main level and spills into a generous living/dining room for entertaining. The open kitchen is tailored to the chef featuring sleek Poggenpohl cabinetry, granite counters and backsplash, sleek wood cabinetry, and premium stainless steel Viking appliances. Also on this level is a guest powder room, fabulous primary bedroom retreat with a walk-in closet and en-suite bath, 2 additional bedrooms with ample closets, a full hall bath, and a convenient washer-dryer.Ascend the central staircase to the upper floor, a divine escape presenting a tranquil library or 4th bedroom, a full bath, sun-filled den/solarium, and fabulous private terrace with amazing city and blue sky views. Other highlights include central air conditioning, and a designated storage unit that comes with the apartment.The handsome Lion's Head at 121 West 19th Street, built in 1903 and converted to condominiums by Alchemy Properties in 2005, stands 11 stories at a coveted Chelsea address. The full-service elevator building, named for its distinctive lion's head on the fa ade, offers a 24-hour doorman, live-in superintendent, and lovely common rooftop terrace. Pets are allowed. Its outstanding location near the Chelsea Art District, vibrant Flatiron and Union Square is easily accessible to great restaurants, shopping, and subway transportation. Schedule an appointment to experience the allure of this exclusive property today!
Listing courtesy of Douglas Elliman Real Estate, Richard Nassimi - (212) 891-7000
See lessBuilding Amenities
Unit Amenities
- Laundry
- Roof Deck
- Private Outdoor Space Over 60 Sqft
- Smoke Free



