Prospect Lefferts Gardens, Brooklyn NY 11225
|
17 Rooms
|
4 Beds
|
3 Baths
|
4700 SQ. FT.
Description
Located in the heart of the historic Lefferts Manor District, 56 Rutland Road is part of a captivating row of four-story, single-family homes. Designed by renowned architect Albert E. White in 1898, this property is a stunning example of transitional Romanesque Revival and Neo-Renaissance architecture.... See more
Located in the heart of the historic Lefferts Manor District, 56 Rutland Road is part of a captivating row of four-story, single-family homes. Designed by renowned architect Albert E. White in 1898, this property is a stunning example of transitional Romanesque Revival and Neo-Renaissance architecture.
The home’s striking L-shaped stoop leads to an impressive front entrance, highlighted by Romanesque carvings and the original wood-and-glass double doors, which have been beautifully preserved. Inside, the parlor floor welcomes you with elegant pier mirrors, intricate moldings, and original parquet floors. This level features a formal living room at the front, a cozy lounge area with a fireplace in the middle, and a spacious library, also complete with a fireplace.
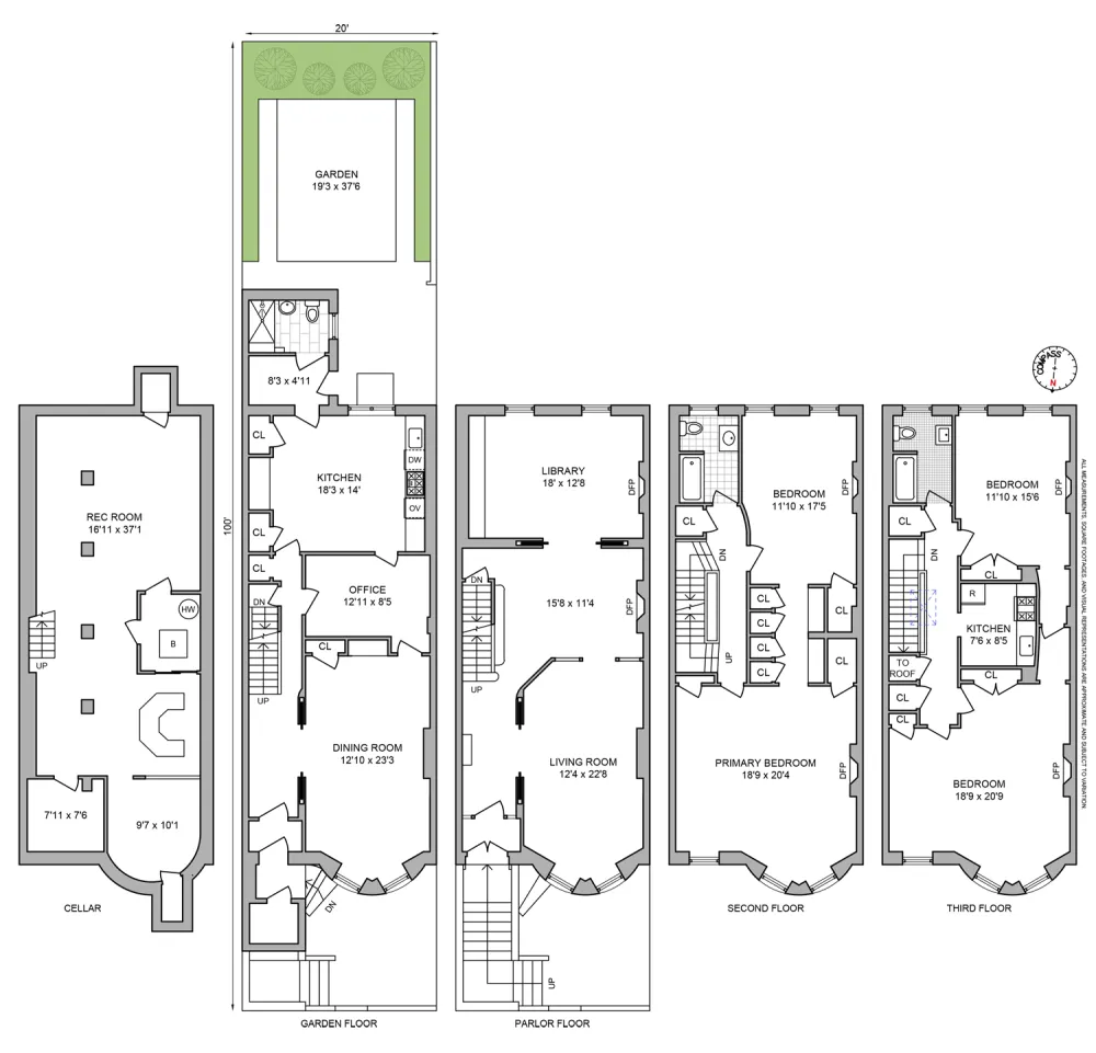
On the garden level, the kitchen offers easy access to the private backyard, accompanied by a full bathroom and a formal dining area with meticulously maintained built-in cabinetry.
The second floor is home to two generous bedrooms and a full bath. The rooms are connected by a shared walkthrough closet and vanity area. The third floor offers two additional bedrooms, another full bathroom, and a secondary kitchen.
The finished cellar, with its high ceilings, contains the mechanical room and an old-fashioned bar, adding a nostalgic touch to the home’s history.
Throughout the house, you will find an abundance of original details and exquisite woodwork, preserving its historic charm. As a shining example of late 19th-century architecture in the Prospect Lefferts Historic District, this residence offers incredible potential. With some vision and expertise from an architect or contractor, it is easy to see how this grand home could be revived to its full glory. A must-see property.
56 Rutland Road is situated on a picturesque tree-lined street in Prospect Lefferts Gardens, just three blocks from Prospect Park. With easy access to the Q train and an array of local dining spots like Bomberino, Trove Wine Bar & Kitchen, and Silver Rice, this is Brooklyn living at its finest.
Listing courtesy of , Tali Berzak - (212) 913-9058
See lessBuilding Amenities
Unit Amenities
- ,
Location
56 Rutland Road, , 11225
Similar Listings
Townhouse
$1,850,000
307 LINCOLN Road, Prospect Lefferts Gardens
4 Beds | 3 Baths
| 2,880 sqft
Listing by Joseph Dima
Townhouse
$1,500,000
167 Sterling Street, Prospect Lefferts Gardens
4 Beds | 3 Baths
| 2,128 sqft
Listing by Kirsten Syrett
Other
$1,750,000
196 Maple Street, Prospect Lefferts Gardens
4 Beds | 2 Baths
| 1,800 sqft
Listing by Parviz Latipzoda
Apartment
$1,495,000
624 NEW YORK Avenue, Prospect Lefferts Gardens
4 Beds | 3 Baths
| 1,610 sqft
Listing by Bruce Henderson
Townhouse
$2,695,000
195 Rutland Road, Prospect Lefferts Gardens
4 Beds | 4 Baths
| 2,600 sqft
Listing by Justin Dupree
Townhouse
$1,495,000
412 RUTLAND Road, Prospect Lefferts Gardens
4 Beds | 3 Baths
Listing by Adelinda Leon
Other
$2,300,000
261 Fenimore Street, Prospect Lefferts Gardens
4 Beds | 2 Baths
| 3,024 sqft
Listing by Jeanne Kempton
Multi Family
$1,575,000
332 LEFFERTS Avenue, Prospect Lefferts Gardens
4 Beds | 4 Baths
| 3,360 sqft
Listing by Andrew Klima



