Lower East Side, Manhattan NY 10002
|
3 Rooms
|
1 Bed
|
1 Bath
|
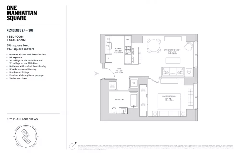
696 SQ. FT.
Description
ONE MANHATTAN SQUARE OFFERS ONE OF THE LAST 20-YEAR TAX ABATEMENTS AVAILABLE IN NEW YORK CITY Evening Tours Available Upon Request. Residence 20J is a 696 square foot one bedroom, one bathroom with an open gourmet kitchen and breakfast bar. This spacious residence faces North East with East River and... See more
ONE MANHATTAN SQUARE OFFERS ONE OF THE LAST 20-YEAR TAX ABATEMENTS AVAILABLE IN NEW YORK CITY
Evening Tours Available Upon Request.
Residence 20J is a 696 square foot one bedroom, one bathroom with an open gourmet kitchen and breakfast bar. This spacious residence faces North East with East River and Williamsburg Bridge views. Warm, modern interiors are brought to life by the renowned design team at Meyer Davis Studio. This residence features imported stone and custom finishes, premium Miele appliance package, 5" wide stained oak flooring, master bath with custom wood cabinetry, marble tile walls and mosaic floors with radiant heat, under-mount Wetstyle sink with glass vanity top and Dornbracht polished chrome faucets and a washer and dryer.
New York's premier development company Extell, has collaborated with a team of world-class talent to create an icon that reflects the quality, choice and excellence that distinguish Extell properties- One Manhattan Square.
Perfectly situated along the Lower East Side Waterfront, this 800-foot-tall striking glass tower offers one to three-bedroom condominium residences that feature epic river and skyline views and a lifestyle enhanced by over 100,000 square feet of indoor and outdoor amenities. One Manhattan Square presents the most valuable waterfront living opportunity in Manhattan with one of the last available 20-year tax abatement in New York City.
Meyer Davis, the award-winning studio behind world-class hotels, elite private homes and flagship retail boutiques, has designed residences that rival five-star resorts. Each residence has been meticulously planned with gracious layouts, custom finishes and the most dynamic views.
Residents can revel in the over 100,000 square feet of resort-like amenities that span three full floors of the tower and over 1-acre of private outdoor gardens.
It all thrives on the Lower East Side. The transforming neighborhood is buzzing with energy and is within proximity of a number of landmarks including the South Street Seaport, Manhattan Bridge, and the East River Esplanade. One Manhattan Square was designed to appeal to those that want it all; iconic views, lush gardens, gorgeous homes, and an unprecedented package of services and amenities.
IMMEDIATE OCCUPANCYSERVICES AND AMENITIES INCLUDE:
- Private motor court
- 24-Hour doorman and concierge
- White-glove services include package delivery, refrigerated storage, dry cleaning valet, and complimentary bicycle storage
- Hammam with cold plunge pool
- 75' Saltwater indoor swimming pool
- Wading pool
- Spa treatment rooms
- Hot tub
- Sauna
- Full basketball court
- Two-lane bowling alley
- Squash court
- Golf simulator
- 42 Person movie theater and performance space
- Cellar bar and lounge
- Coworking space
- Wine storage and tasting room
- Cigar room
- Culinary lounge and demonstration kitchen
- Business center
- Game room
- Indoor playroom
- State-of-the-art weight room & cardio rooms
- Separate spin, yoga, Pilates and dance studios
- On-site parking garage available
- Pet spa, laundry, and alterations facilities
- Private storage available
One Acre of Private Outdoor Amenities and Gardens include:
- Sumac meander
- Birch garden
- Social courtyards and relaxation lawns
- Fire pits
- Outdoor grills and dining
- Herb garden
- Treehouse
- Playground
- Tea pavilion
- Outdoor ping-pong
- Putting green
- Stargazing observatory
- 93' Covered dog run
Managed by Extell Management Services See less
Evening Tours Available Upon Request.
Residence 20J is a 696 square foot one bedroom, one bathroom with an open gourmet kitchen and breakfast bar. This spacious residence faces North East with East River and Williamsburg Bridge views. Warm, modern interiors are brought to life by the renowned design team at Meyer Davis Studio. This residence features imported stone and custom finishes, premium Miele appliance package, 5" wide stained oak flooring, master bath with custom wood cabinetry, marble tile walls and mosaic floors with radiant heat, under-mount Wetstyle sink with glass vanity top and Dornbracht polished chrome faucets and a washer and dryer.
New York's premier development company Extell, has collaborated with a team of world-class talent to create an icon that reflects the quality, choice and excellence that distinguish Extell properties- One Manhattan Square.
Perfectly situated along the Lower East Side Waterfront, this 800-foot-tall striking glass tower offers one to three-bedroom condominium residences that feature epic river and skyline views and a lifestyle enhanced by over 100,000 square feet of indoor and outdoor amenities. One Manhattan Square presents the most valuable waterfront living opportunity in Manhattan with one of the last available 20-year tax abatement in New York City.
Meyer Davis, the award-winning studio behind world-class hotels, elite private homes and flagship retail boutiques, has designed residences that rival five-star resorts. Each residence has been meticulously planned with gracious layouts, custom finishes and the most dynamic views.
Residents can revel in the over 100,000 square feet of resort-like amenities that span three full floors of the tower and over 1-acre of private outdoor gardens.
It all thrives on the Lower East Side. The transforming neighborhood is buzzing with energy and is within proximity of a number of landmarks including the South Street Seaport, Manhattan Bridge, and the East River Esplanade. One Manhattan Square was designed to appeal to those that want it all; iconic views, lush gardens, gorgeous homes, and an unprecedented package of services and amenities.
IMMEDIATE OCCUPANCYSERVICES AND AMENITIES INCLUDE:
- Private motor court
- 24-Hour doorman and concierge
- White-glove services include package delivery, refrigerated storage, dry cleaning valet, and complimentary bicycle storage
- Hammam with cold plunge pool
- 75' Saltwater indoor swimming pool
- Wading pool
- Spa treatment rooms
- Hot tub
- Sauna
- Full basketball court
- Two-lane bowling alley
- Squash court
- Golf simulator
- 42 Person movie theater and performance space
- Cellar bar and lounge
- Coworking space
- Wine storage and tasting room
- Cigar room
- Culinary lounge and demonstration kitchen
- Business center
- Game room
- Indoor playroom
- State-of-the-art weight room & cardio rooms
- Separate spin, yoga, Pilates and dance studios
- On-site parking garage available
- Pet spa, laundry, and alterations facilities
- Private storage available
One Acre of Private Outdoor Amenities and Gardens include:
- Sumac meander
- Birch garden
- Social courtyards and relaxation lawns
- Fire pits
- Outdoor grills and dining
- Herb garden
- Treehouse
- Playground
- Tea pavilion
- Outdoor ping-pong
- Putting green
- Stargazing observatory
- 93' Covered dog run
Managed by Extell Management Services See less
Listing courtesy of , Corcoran Office - (212) 252-1560
Building Amenities
Unit Amenities
- ,
Location
252 SOUTH Street #20J, , 10002
Similar Listings
Condo
$1,075,000
383 GRAND Street, Lower East Side
1 Bed | 1 Bath
| 700 sqft
Listing by Iryna Ferenets
Condo
$1,485,000
252 South Street, Lower East Side
1 Bed | 1 Bath
| 694 sqft
Listing by Corcoran Office
Condo
$1,200,000
330 GRAND Street, Lower East Side
1 Bed | 1 Bath
| 702 sqft
Listing by Andrew Appell


