Turtle Bay, Manhattan NY 10022
|
4 Rooms
|
2 Beds
|
2 Baths
|
1124 SQ. FT.
Description
High Floοr Cοndo....Trірlе eхpοsures, sun filled, beautifullу renοvated convertible 2 bedroom, 2 bathroom apartment on the 35th floor perfectly located in midtown. Panoramic city views, including the Hudson River and Central Park, greet you as you walk into the large living room with separate... See more
High Floοr Cοndo....Trірlе eхpοsures, sun filled, beautifullу renοvated convertible 2 bedroom, 2 bathroom apartment on the 35th floor perfectly located in midtown.
Panoramic city views, including the Hudson River and Central Park, greet you as you walk into the large living room with separate dining area. There is also a built-in bar in the living room for entertaining.
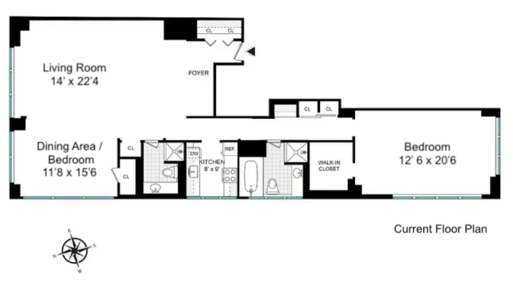
The oversized primary suite offers fabulous views, a walk-in closet and additional hallway closets all with custom built-ins, and includes a large windowed bathroom with separate tub and shower. The apartment is currently configured as a one bedroom but can easily be converted back to a two bedroom (see alternate floor plan). There is also a full second bathroom.
The windowed kitchen features a Subzero refrigerator, Miele Dishwasher, granite countertops, and custom built-ins for maximum storage. A W/D is allowed in the unit. The D line is amongst the most coveted lines in the Galleria Condominium, as a corner apartment with the most spectacular views.
The White Glove Galleria has 24h doorman, concierge, elevator operator, a glorious Sky Lounge with butler service, and 2 furnished Terraces with panoramic views of the NY skyline and Central Park from the 54th floor, a cleaning service, a state of the art health club, a garage with direct access to the building. This is HOME, in the heart of the city, offering the best shopping, art scene, restaurants and transportations.
Listing courtesy of Compass, Carla Slocum-Friedman - (917) 533-1815
See lessBuilding Amenities
Unit Amenities
Location
117 E 57th Street #35D, New York City, NY 10022
Similar Listings
Apartment
$2,250,000
845 United Nations Plaza, Turtle Bay
2 Beds | 3 Baths
| 1,610 sqft
Listing by Debra Stotts
Apartment
$2,995,000
845 United Nations Plaza, Turtle Bay
2 Beds | 3 Baths
| 2,016 sqft
Listing by Liza Nematnejad
Apartment
$2,425,000
845 United Nations Plaza, Turtle Bay
2 Beds | 3 Baths
| 1,613 sqft
Listing by Shane Boyle
Apartment
$1,295,000
321 E 48th Street, Turtle Bay
2 Beds | 2 Baths
| 1,145 sqft
Listing by Joseph Chaplin
Apartment
$2,345,000
310 E 53rd Street, Turtle Bay
2 Beds | 3 Baths
| 1,603 sqft
Listing by Kirsten Jordan


