Lincoln Square, Manhattan NY 10019
|
6 Rooms
|
3 Beds
|
6 Baths
|
3491 SQ. FT.
Description
Don't miss this newly priced fabulous home in the best building location in Billionaires Row. Situated at the Southern Gateway to Central Park at the iconic, The Deutsche Bank Center (formerly known Time Warner Condominium), this newly renovated high floor, incredible duplex residence consists of 3,491... See more
Don't miss this newly priced fabulous home in the best building location in Billionaires Row.
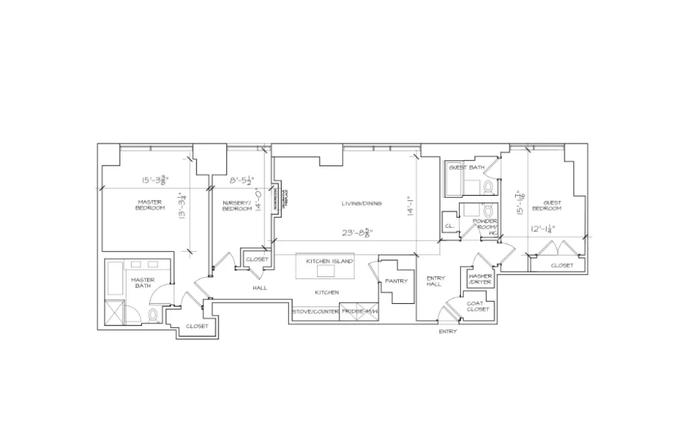
Situated at the Southern Gateway to Central Park at the iconic, The Deutsche Bank Center (formerly known Time Warner Condominium), this newly renovated high floor, incredible duplex residence consists of 3,491 square feet and glorious views of Central Park from every room. There is an oversized living room/dining room, three bedroom, a media room, a laundry room, a spectacular kitchen, 5 1/2 bathrooms including an oversized amazing sauna. This light flooded home has additional impressive special features successfully created by a perfectionist whose goal to create a superlative "one of a kind" living experience was met.
The stunning Shagreen tile wall covering, the amazing hammered bronze elevator doors, the serpentine shaped walnut under lit staircase, and the amazing view of Central Park greet you upon entering the foyer. The entry foyer includes a powder room, and two large closets. The living room with its direct Park views, decorative fireplace with a white onyx surround and pocket doors that lead to the fabulous media room/4th bedroom. The island kitchen is perfection with Kinon cabinets and all top-of-the line appliances. In addition, there is a full laundry and bath with a double vanity.
The upper floor houses three generous sized bedrooms and 4 baths which includes an oversized superb sauna. On this floor, all bathroom floors are heated and have Toto toilets and onyx finishes throughout. A comfortable sitting area has been created at the upper landing; there are also sufficient closets to make a closet lover's heart sing. This apartment must be seen, it is truly the epitome of sophistication and refinement.
The Deutsche Bank Center (formerly Time Warner) is conveniently located at the center of New York's most prestigious residential, cultural and business establishments. Its location is steps away from Lincoln Center, Carnegie Hall, the theater district, glamorous boutiques, fine dining, theater and of course the splendor of Central Park. 25 Columbus Circle is a full-service building with 24hr doormen. concierge, security, a garage, state-of-the-art gym, planted roof deck, screening room, children's playroom, conference & party room. Residents also have full access to the Mandarin Orientals indoor pool, spa and health club. This destination building is home to Whole Foods, designer shopping, and Jazz at Lincoln Center.
Situated at the Southern Gateway to Central Park at the iconic, The Deutsche Bank Center (formerly known Time Warner Condominium), this newly renovated high floor, incredible duplex residence consists of 3,491 square feet and glorious views of Central Park from every room. There is an oversized living room/dining room, three bedroom, a media room, a laundry room, a spectacular kitchen, 5 1/2 bathrooms including an oversized amazing sauna. This light flooded home has additional impressive special features successfully created by a perfectionist whose goal to create a superlative "one of a kind" living experience was met.
The stunning Shagreen tile wall covering, the amazing hammered bronze elevator doors, the serpentine shaped walnut under lit staircase, and the amazing view of Central Park greet you upon entering the foyer. The entry foyer includes a powder room, and two large closets. The living room with its direct Park views, decorative fireplace with a white onyx surround and pocket doors that lead to the fabulous media room/4th bedroom. The island kitchen is perfection with Kinon cabinets and all top-of-the line appliances. In addition, there is a full laundry and bath with a double vanity.
The upper floor houses three generous sized bedrooms and 4 baths which includes an oversized superb sauna. On this floor, all bathroom floors are heated and have Toto toilets and onyx finishes throughout. A comfortable sitting area has been created at the upper landing; there are also sufficient closets to make a closet lover's heart sing. This apartment must be seen, it is truly the epitome of sophistication and refinement.
The Deutsche Bank Center (formerly Time Warner) is conveniently located at the center of New York's most prestigious residential, cultural and business establishments. Its location is steps away from Lincoln Center, Carnegie Hall, the theater district, glamorous boutiques, fine dining, theater and of course the splendor of Central Park. 25 Columbus Circle is a full-service building with 24hr doormen. concierge, security, a garage, state-of-the-art gym, planted roof deck, screening room, children's playroom, conference & party room. Residents also have full access to the Mandarin Orientals indoor pool, spa and health club. This destination building is home to Whole Foods, designer shopping, and Jazz at Lincoln Center.
Listing courtesy of , Ileen Schoenfeld - (212) 396-5878
See lessBuilding Amenities
Unit Amenities
- ,
Location
25 COLUMBUS Circle #72B, New York City, NY 10019
Similar Listings
Apartment
$2,995,000
310 W 72ND Street, Lincoln Square
3 Beds | 2 Baths
| 2,000 sqft
Listing by Jill Sloane
Apartment
$4,750,000
1965 Broadway, Lincoln Square
3 Beds | 3 Baths
| 1,859 sqft
Listing by Rick Kelly
Apartment
$7,100,000
50 W 66TH Street, Lincoln Square
3 Beds | 4 Baths
| 2,427 sqft
Listing by Janice Chang
Apartment
$1,995,000
180 W End Avenue, Lincoln Square
3 Beds | 2 Baths
| 1,800 sqft
Listing by Beth Sievers
Apartment
$4,000,000
22 W 66th Street, Lincoln Square
3 Beds | 3 Baths
| 2,241 sqft
Listing by STEVEN COHEN
Apartment
$3,795,000
1 W END Avenue, Lincoln Square
3 Beds | 3 Baths
| 1,687 sqft
Listing by Victoria Shtainer
Apartment
$2,180,000
243 W 60TH Street, Lincoln Square
3 Beds | 3 Baths
| 1,667 sqft
Listing by Karina Sagiev