Flatbush, Brooklyn NY 11226
|
10 Rooms
|
4 Beds
|
3 Baths
|
- SQ. FT.
Description
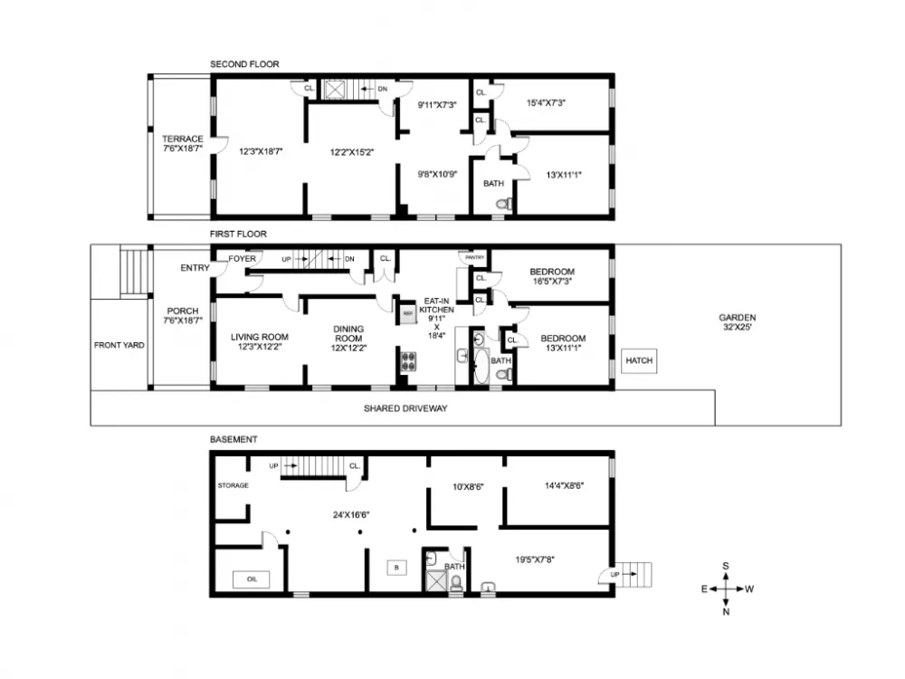
Flatbush semi-attached two family brick home with shared driveway. Property is built 20 x 55 on a 25 x 100 lot and in need of a full gut renovation and/or can be developed to maximize FAR (roughly 6,000 SF Building has 2 electric meters, 2 gas meters and an oil tank for heat. Proximity to 2 5 trains... See more
Flatbush semi-attached two family brick home with shared driveway. Property is built 20 x 55 on a 25 x 100 lot and in need of a full gut renovation and/or can be developed to maximize FAR (roughly 6,000 SF +/-)
Building has 2 electric meters, 2 gas meters and an oil tank for heat. Proximity to 2 & 5 trains at Beverly Road and Church Ave as well as all amenities on the Church Ave commercial corridor.
Building has 2 electric meters, 2 gas meters and an oil tank for heat. Proximity to 2 & 5 trains at Beverly Road and Church Ave as well as all amenities on the Church Ave commercial corridor.
Listing courtesy of , Joseph Dima - (917) 923-0120
See lessBuilding Amenities
Unit Amenities
- ,
Location
108 E 32ND Street, , 11226
Similar Listings
Other
$2,199,995
2704 Glenwood Road, Flatbush
4 Beds | 5 Baths
| 4,574 sqft
Listing by Jessica Hirsch
Townhouse
$1,750,000
819 E 19th Street, Flatbush
4 Beds | 3 Baths
| 4,000 sqft
Listing by Karen Kelley
Multi Family
$1,150,000
3120 CHURCH Avenue, Flatbush
4 Beds | 2 Baths
| 2,204 sqft
Listing by Joseph Dima



