Hudson Yards, Manhattan NY 10011
|
6 Rooms
|
4 Beds
|
6 Baths
|
4603 SQ. FT.
Description
Private In-Person Virtual Appointments Available Immediate Occupancy. Inspired by West Chelsea’s historical architecture and rich heritage, The Cortland, located at 555 W 22nd Street, is striking a new presence on the Hudson waterfront. Hand-crafted and American-made, The Cortland represents a unique... See more
Private In-Person & Virtual Appointments Available – Immediate Occupancy.
Inspired by West Chelsea’s historical architecture and rich heritage, The Cortland, located at 555 W 22nd Street, is striking a new presence on the Hudson waterfront. Hand-crafted and American-made, The Cortland represents a unique collaboration between two architectural icons, Robert A.M. Stern Architects and Olson Kundig. Uniting elegant design and exceptional attention to detail, The Cortland is a building that will stand for generations to come.
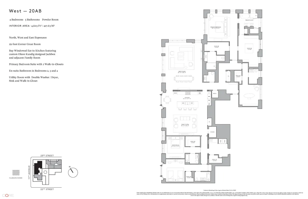
Residence 20AB is 4,603 SF with four bedrooms and five-and-a-half bathrooms. The expansive, open-plan living and dining areas feature unobstructed views of the Hudson River, a 29-foot corner great room, a windowed eat-in kitchen with a custom Olson Kundig-designed Jackbox, warm wood flooring, and floor-to-ceiling windows. The primary bedroom suite features two walk-in closets connected to two full bathrooms. Each of the additional bedrooms is complete with an en-suite bathroom. A utility room with a double washer/dryer, sink, and walk-in closet tie into a secondary entry point.
The amenity program is the heart of the residential experience at The Cortland. Designed by Olson Kundig and curated by Related Life, the amenities have all the style and sophistication of a private members club in the city.
Developed by Related. The listing images represent the actual unit.
The complete offering terms are in the offering plan available from Sponsor. File No. CD 19-0409.
Listing courtesy of , The Cortland - (212) 688-2200
See lessBuilding Amenities
Unit Amenities
- ,
Location
555 W 22nd Street #20AB, New York City, NY 10011
Similar Listings
Apartment
$12,050,000
35 HUDSON YARDS, Hudson Yards
4 Beds | 5 Baths
| 3,848 sqft
Listing by Fifteen Gallery
Apartment
$10,025,000
500 W 18TH Street, Hudson Yards
4 Beds | 5 Baths
| 2,782 sqft
Listing by One Office
Apartment
$13,305,000
500 W 18TH Street, Hudson Yards
4 Beds | 5 Baths
| 3,114 sqft
Listing by Deborah Kern
Apartment
$24,600,000
500 W 18TH Street, Hudson Yards
4 Beds | 5 Baths
| 5,160 sqft
Listing by One Office
Apartment
$3,675,000
142 W 26th Street, Hudson Yards
4 Beds | 3 Baths
| 3,870 sqft
Listing by Julie Pham
Apartment
$6,995,000
5 E 17th Street, Hudson Yards
4 Beds | 4 Baths
| 6,000 sqft
Listing by Brian Lewis
Apartment
$9,950,000
555 W 22nd Street, Hudson Yards
4 Beds | 5 Baths
| 3,015 sqft
Listing by The Cortland


