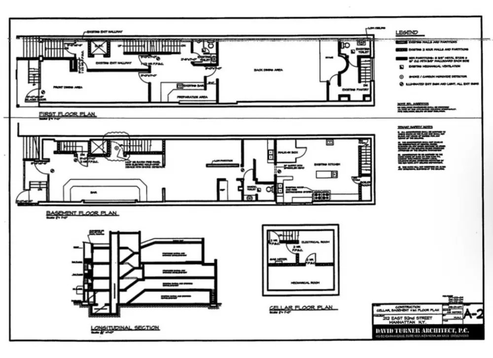
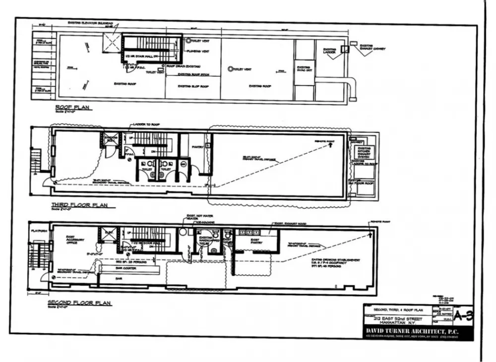
Description
212 East 52nd Street, New York, NY 10022 is located at the most impressive retail corridor in the globe which it is attracting tourists from all over the world. It has three floors with a selling basement. It offers an unparalleled opportunity to own approximately 6,400 sq ft of the retail building in New York City's most coveted real estate. It is a great for all types of investors with a Potential Build-up Space. Easy access to numerous hotels such as The Maxwell, Waldorf Astoria, Pod 51 and Midtown East's "Restaurant Row" with an abundant of food options. It is near St. Patrick's Cathedral, Rockefeller Center, Central Park, Radio City Music Hall, United Nations Headquarters, Grand Central Terminal, Chrysler Building , Whole Foods among many others. Nearby subway lines 4/5/6/W/R/N/Q/F/M/E trains, and Metro-North Railroad. Please feel free to contact me with any questions if interested.
Please be mindful and do not disturb the Tenants!!
Listing courtesy of , Jia Yan - (917) 575-5778
See lessBuilding Amenities
Unit Amenities
- ,


