North Riverdale, Bronx NY 10471
|
8 Rooms
|
0 Beds
|
2 Baths
|
1100 SQ. FT.
Description
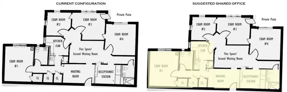
Ideally located at the highly trafficked corner of 256th Street Riverdale Avenue with prominent outdoor signage, this rarely available office (the only one in the building) awaits a new owner. Currently configured as a doctor's office with four windowed rooms (all with water hook-ups in place),... See more
Ideally located at the highly trafficked corner of 256th Street & Riverdale Avenue with prominent outdoor signage, this rarely available office (the only one in the building) awaits a new owner.
Currently configured as a doctor's office with four windowed rooms (all with water hook-ups in place), a bonus windowed lab room or extended kitchen, two waiting rooms, a dedicated reception area with an abundant storage closet, kitchen with full-size refrigerator & microwave and 1.5 baths (the full bathroom has a shower/half bath is wheelchair accessible). There's also a private door leading to a porch and walkway to the street. This unit also has the potential for other business professional use or can be converted as a residence.
Entrances are either through the lobby of 5601 Riverdale Avenue, with a 24 hour doorman for added security or through a side ramped entry. This well-maintained full-service mid-rise building also boasts a live-in super and is surrounded by lots of available street parking. It's also accessible to highways & convenient to public transportation, close to schools, Skyview Shopping Center, and Riverdale Y. Schedule to see it today!
Currently configured as a doctor's office with four windowed rooms (all with water hook-ups in place), a bonus windowed lab room or extended kitchen, two waiting rooms, a dedicated reception area with an abundant storage closet, kitchen with full-size refrigerator & microwave and 1.5 baths (the full bathroom has a shower/half bath is wheelchair accessible). There's also a private door leading to a porch and walkway to the street. This unit also has the potential for other business professional use or can be converted as a residence.
Entrances are either through the lobby of 5601 Riverdale Avenue, with a 24 hour doorman for added security or through a side ramped entry. This well-maintained full-service mid-rise building also boasts a live-in super and is surrounded by lots of available street parking. It's also accessible to highways & convenient to public transportation, close to schools, Skyview Shopping Center, and Riverdale Y. Schedule to see it today!
Listing courtesy of Brown Harris Stevens Residential Sales LLC, Andrew Kramer - (212) 317-3634
See lessBuilding Amenities
Unit Amenities
- Laundry
- Private Outdoor Space Over 60 Sqft
- Smoke Free
- Terrace
Similar Listings
Apartment
$172,000
5900 ARLINGTON Avenue, North Riverdale
0 Beds | 1 Bath
| 400 sqft
Listing by Scott Kriger
Apartment
$175,000
5900 ARLINGTON Avenue, North Riverdale
0 Beds | 1 Bath
Listing by Ramy Rakotomalala
Apartment
$169,000
4901 Henry Hudson Parkway, North Riverdale
0 Beds | 1 Bath
Listing by Alison Bartlett



